“Weathered wood” 3-tab shingled roof with 7/16” OSB roof decking
Can lights installed in soffit
White window lineals across front of home
White exterior bezzels
2” X 8” Floor Joist 16 O.C. (16’ Wide Floors)
3/4″ OSB sub-floor decking
2”X 4” exterior walls 16” O.C.
2”X 4” marriage walls 24” O.C.
Energy brace on marriage line
2” X 4” interior walls 16 O.C.
Fixed roof pitch (rafters 24” O.C. WZ 1&2)
8.5’ Sidewalls
22-13-38 Insulation
Doors & Windows
Water heater 2 panel interior door (model specific)
Raised 30” white 2 panel interior doors throughout (where applicable)
Levered brushed nickel door knobs
Mortise interior door hinges throughout
White deluxe window & door casings throughout
3882 8 Light front door (w/ storm)
3882 Inswing 1/2 glass rear door (w/ storm) with brushed nickel round door knob & deadbolt
Lux® Argon Gas Bronze Low-E Windows
Hardie fascia board
Vinyl siding w/ 7/16” OSB house wrap
Model specific exterior elevations
Whole house wrap underlayment
“Weathered wood” 3-tab shingled roof with 7/16” OSB roof decking
Can lights installed in soffit
White window lineals across front of home
White exterior bezzels
Kitchen
Samsung® Stainless Steel Appliances
Stainless steel side-by-side refrigerator
Smooth-top range
Stainless steel microwave
Stainless steel dishwasher
Hickory wood Cabinets
Pot & pan drawers in kitchen
Adjustable shelves in base & overhead cabinets
Rolled edge counter tops with one row ceramic backsplash
Hidden cabinet door hinges
Hammered steel cabinet pulls
Drawer over door construction
Samsung® Stainless Steel Appliances
Stainless steel side-by-side refrigerator
Smooth-top range
Stainless steel microwave
Stainless steel dishwasher
Hickory wood Cabinets
Pot & pan drawers in kitchen
Adjustable shelves in base & overhead cabinets
Rolled edge counter tops with one row ceramic backsplash
Hidden cabinet door hinges
Hammered steel cabinet pulls
Drawer over door construction
Bathroom
Interior
Shaw® carpet
5 LBS “energy” rebond carpet pad
Linoleum in wet areas and den areas (model specific)
Finished 1/2” sheetrock throughout
Stipple Finished Ceilings
Tray ceilings with ceiling beams
Ceramic backsplash in kit behind range
Wood burning/ electric fireplace (model specific)
2” White faux wood blinds throughout
White deluxe crown molding (except small closets)
White flat 2” crown & base in small closets
White deluxe baseboard molding (except small closets)
Wire shelving
Wood shelving with rod at washer & dryer area
White deluxe interior door & window trim throughout
Shaw® carpet
5 LBS “energy” rebond carpet pad
Linoleum in wet areas and den areas (model specific)
Finished 1/2” sheetrock throughout
Stipple Finished Ceilings
Tray ceilings with ceiling beams
Ceramic backsplash in kit behind range
Wood burning/ electric fireplace (model specific)
2” White faux wood blinds throughout
White deluxe crown molding (except small closets)
White flat 2” crown & base in small closets
White deluxe baseboard molding (except small closets)
Wire shelving
Wood shelving with rod at washer & dryer area
White deluxe interior door & window trim throughout
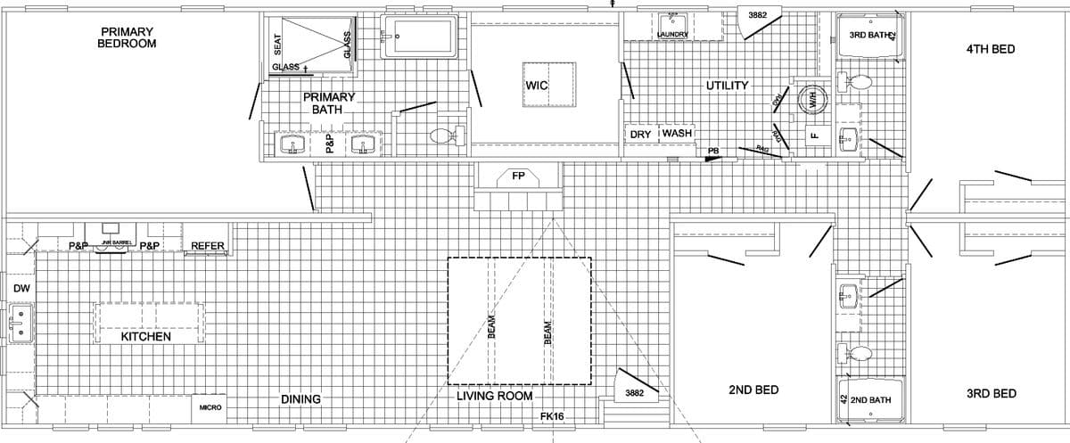
Images of homes are solely for illustrative purposes and should not be relied upon. Images may not accurately represent the actual condition of a home as constructed, and may contain options which are not standard on all homes.