Homes | The Crockett | Conroe
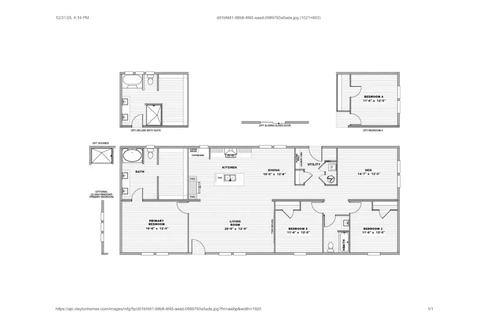
4 bedrooms
2 full bathrooms
1,791 sq. ft.
28' x 68'
Inventory model
Energy Homes standard features
Construction
2” X 8” Floor Joist 16 O.C. (16’ Wide Floors) 3/4″ OSB sub-floor decking 2”X 4” exterior walls 16” O.C. 2”X 4” marriage walls 24” O.C. Energy brace on marriage line 2” X 4” interior walls 16 O.C. Fixed roof pitch (rafters 24” O.C. WZ 1&2) 8.5’ Sidewalls 22-13-38 Insulation Doors & Windows Water heater 2 panel interior door (model specific) Raised 30” white 2 panel interior doors throughout (where applicable) Levered brushed nickel door knobs Mortise interior door hinges throughout White deluxe window & door casings throughout Tejas Homes
Affordable homes at your fingertips
Get started with Tejas Homes
Find, design, and order your next home in a few clicks.
Sign up
Walk through this home in person
Property map Enter your address or APN to check if this home fits on your property
Samsung® Stainless Steel Appliances Stainless steel side-by-side refrigerator Smooth-top range Stainless steel microwave Stainless steel dishwasher Hickory wood Cabinets Pot & pan drawers in kitchen Adjustable shelves in base & overhead cabinets Rolled edge counter tops with one row ceramic backsplash Hidden cabinet door hinges Hammered steel cabinet pulls Drawer over door construction
Samsung® Stainless Steel Appliances Stainless steel side-by-side refrigerator Smooth-top range Stainless steel microwave Stainless steel dishwasher Hickory wood Cabinets
Pot & pan drawers in kitchen Adjustable shelves in base & overhead cabinets Rolled edge counter tops with one row ceramic backsplash
4 bedrooms
2 full bathrooms
1,791 sq. ft.
28' x 68'
Inventory model
3882 8 Light front door (w/ storm)
3882 Inswing 1/2 glass rear door (w/ storm) with brushed nickel round door knob & deadbolt
Lux® Argon Gas Bronze Low-E Windows
2” X 8” Floor Joist 16 O.C. (16’ Wide Floors) 3/4″ OSB sub-floor decking 2”X 4” exterior walls 16” O.C. 2”X 4” marriage walls 24” O.C. Energy brace on marriage line 2” X 4” interior walls 16 O.C. Fixed roof pitch (rafters 24” O.C. WZ 1&2) 8.5’ Sidewalls 22-13-38 Insulation
Doors & Windows Water heater 2 panel interior door (model specific) Raised 30” white 2 panel interior doors throughout (where applicable) Levered brushed nickel door knobs Mortise interior door hinges throughout White deluxe window & door casings throughout 3882 8 Light front door (w/ storm) 3882 Inswing 1/2 glass rear door (w/ storm) with brushed nickel round door knob & deadbolt Lux® Argon Gas Bronze Low-E Windows Interior
Shaw® carpet 5 LBS “energy” rebond carpet pad Linoleum in wet areas and den areas (model specific) Finished 1/2” sheetrock throughout Stipple Finished Ceilings Tray ceilings with ceiling beams Ceramic backsplash in kit behind range Wood burning/ electric fireplace (model specific) 2” White faux wood blinds throughout White deluxe crown molding (except small closets) White flat 2” crown & base in small closets White deluxe baseboard molding (except small closets) Wire shelving Wood shelving with rod at washer & dryer area White deluxe interior door & window trim throughout
Shaw® carpet 5 LBS “energy” rebond carpet pad Linoleum in wet areas and den areas (model specific) Finished 1/2” sheetrock throughout Stipple Finished Ceilings Tray ceilings with ceiling beams Ceramic backsplash in kit behind range Wood burning/ electric fireplace (model specific)
2” White faux wood blinds throughout White deluxe crown molding (except small closets) White flat 2” crown & base in small closets White deluxe baseboard molding (except small closets) Wire shelving Wood shelving with rod at washer & dryer area White deluxe interior door & window trim throughout Mechanical
Plumbing Rheem® hybrid heat pump water heater Water cut-off valves throughout home Main water shut-off inside utility room Brushed nickel spring loaded kitchen faucet Brushed nickel faucets in baths 60”tub/shower combo bath 2 72” Ceramic shower with glass panel with handheld wand Fiberglass tub in mba (tub type is model specific) Square lavs throughout Rainmaker shower head at mba shower Elongated commodes Stainless steel farm sink Exterior frost proof faucets Electrical & Lighting Total electric home with 200 amp service 4” Led recessed lighting elsewhere (quantity & location of are model specific) Exterior can lights built into soffit (Single bowl light) ceiling fan in living room and primary bedroom model specific Wire & Brace for ceiling fans in all guest bedrooms ecobee Programmable Thermostat Carrier Electric Furnace
Plumbing Rheem® hybrid heat pump water heater Water cut-off valves throughout home Main water shut-off inside utility room Brushed nickel spring loaded kitchen faucet Brushed nickel faucets in baths 60”tub/shower combo bath 2 72” Ceramic shower with glass panel with handheld wand Fiberglass tub in mba (tub type is model specific) Square lavs throughout Rainmaker shower head at mba shower
Elongated commodes Stainless steel farm sink Exterior frost proof faucets Electrical & Lighting Total electric home with 200 amp service 4” Led recessed lighting elsewhere (quantity & location of are model specific) Exterior can lights built into soffit (Single bowl light) ceiling fan in living room and primary bedroom model specific Wire & Brace for ceiling fans in all guest bedrooms ecobee Programmable Thermostat Carrier Electric Furnace Kitchen
Samsung® Stainless Steel Appliances Stainless steel side-by-side refrigerator Smooth-top range Stainless steel microwave Stainless steel dishwasher Hickory wood Cabinets Pot & pan drawers in kitchen Adjustable shelves in base & overhead cabinets Rolled edge counter tops with one row ceramic backsplash Hidden cabinet door hinges Hammered steel cabinet pulls Drawer over door construction
Samsung® Stainless Steel Appliances Stainless steel side-by-side refrigerator Smooth-top range Stainless steel microwave Stainless steel dishwasher Hickory wood Cabinets
Pot & pan drawers in kitchen Adjustable shelves in base & overhead cabinets Rolled edge counter tops with one row ceramic backsplash Hidden cabinet door hinges Hammered steel cabinet pulls Drawer over door construction Exterior
Hardie fascia board Vinyl siding w/ 7/16” OSB house wrap Model specific exterior elevations Whole house wrap underlayment “Weathered wood” 3-tab shingled roof with 7/16” OSB roof decking Can lights installed in soffit White window lineals across front of home White exterior bezzels
Hardie fascia board Vinyl siding w/ 7/16” OSB house wrap Model specific exterior elevations Whole house wrap underlayment
“Weathered wood” 3-tab shingled roof with 7/16” OSB roof decking Can lights installed in soffit White window lineals across front of home White exterior bezzels
Hidden cabinet door hinges
Hammered steel cabinet pulls
Drawer over door construction Shaw® carpet 5 LBS “energy” rebond carpet pad Linoleum in wet areas and den areas (model specific) Finished 1/2” sheetrock throughout Stipple Finished Ceilings Tray ceilings with ceiling beams Ceramic backsplash in kit behind range Wood burning/ electric fireplace (model specific) 2” White faux wood blinds throughout White deluxe crown molding (except small closets) White flat 2” crown & base in small closets White deluxe baseboard molding (except small closets) Wire shelving Wood shelving with rod at washer & dryer area White deluxe interior door & window trim throughout
Shaw® carpet 5 LBS “energy” rebond carpet pad Linoleum in wet areas and den areas (model specific) Finished 1/2” sheetrock throughout Stipple Finished Ceilings Tray ceilings with ceiling beams Ceramic backsplash in kit behind range Wood burning/ electric fireplace (model specific)
2” White faux wood blinds throughout White deluxe crown molding (except small closets) White flat 2” crown & base in small closets White deluxe baseboard molding (except small closets) Wire shelving Wood shelving with rod at washer & dryer area White deluxe interior door & window trim throughout
Images of homes are solely for illustrative purposes and should not be relied upon. Images may not accurately represent the actual condition of a home as constructed, and may contain options which are not standard on all homes.
The Revere 4 Bed | 2 Bath | 1,859 Sq. Ft. | 28' x 68'
4 Bed | 2 Bath | 1,968 Sq. Ft. | 28' x 72'
4 Bed | 2 Bath | 2,176 Sq. Ft. | 32' x 68'
4 Bed | 3 Bath | 2,009 Sq. Ft. | 28' x 76'